Cale de l'Usine Électrique











infos
Concours pour la restructuration du site de la Cale de l'Usine Électrique
Classé 2e
Cale de l'Usine Électrique
infos
Concours pour la restructuration du site de la Cale de l'Usine Électrique
Classé 2e
Localisation: Nantes . 44
Surface: 15 165 m2
Statut: Concours
Année: 2024
Fin 2023, La Banque des territoires et Eiffage Immobilier ont proposé de développer les lots 2, G2 et G6 du site avec pour objectif de créer un symbole du renouveau de l’éco-industrie nautique et maritime à Nantes. Leur programmation vise à répondre aux besoins des acteurs industriels en offrant des espaces de production, de recherche, de prototypage, de services, de restauration et de bureaux sur un même site.
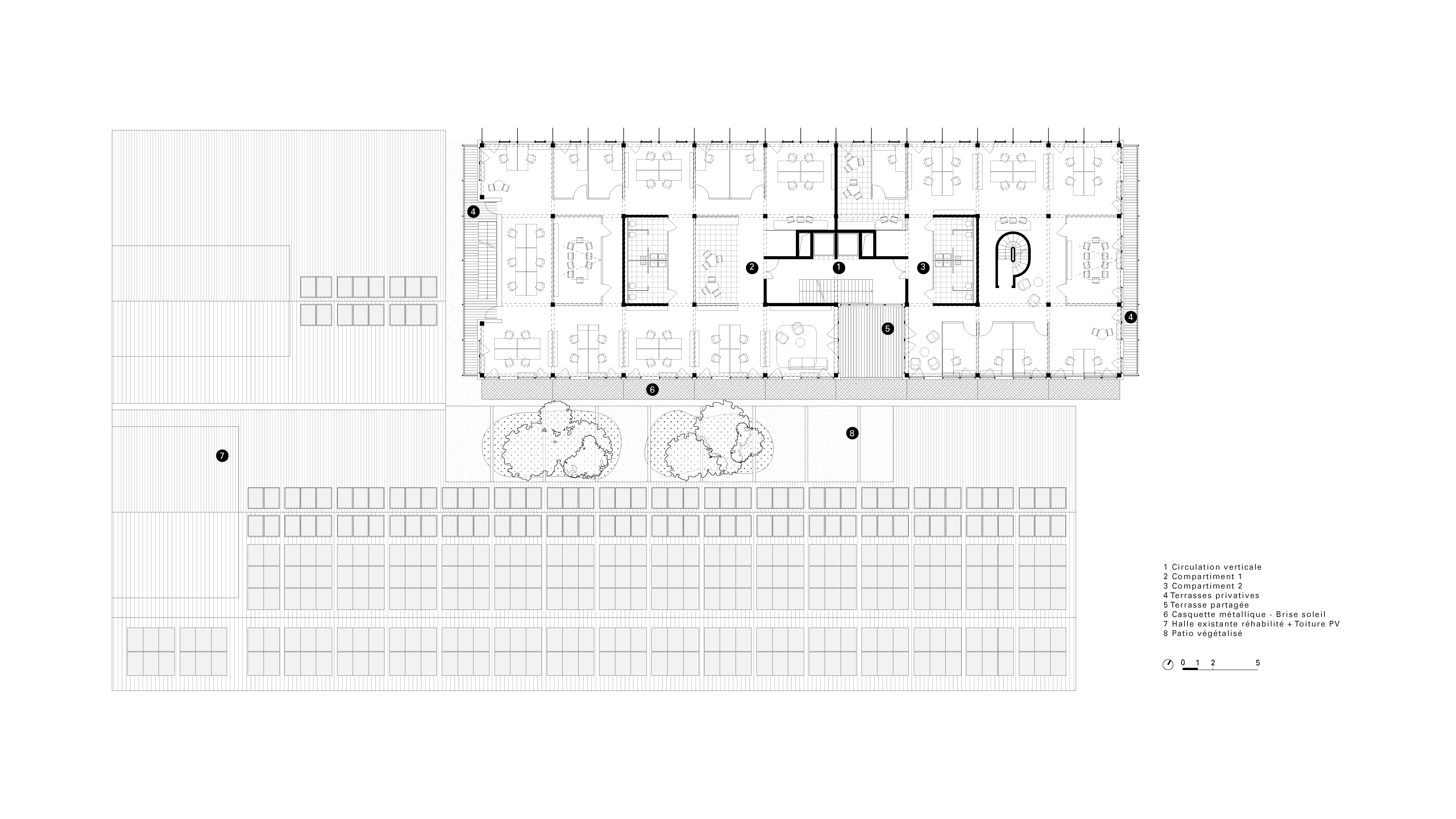
Le site de projet est doté de nombreux “objets merveilleux”: ce sont des bâtiments riches de leur passé industriel, parfois encore en activité. Positionnés à proximité les uns des autres, ils ont occupé ce territoire en bord de Loire à défaut de l’avoir urbanisé.
La réponse architecturale met en avant la création d’une nouvelle ville productive située entre ciel, terre et eau. Elle vise à renforcer la relation entre le site et la Loire tout en respectant l’existant et en adoptant une approche du «faire avec» pour valoriser le patrimoine industriel de la Cale Électrique du Bas-Chantenay.
Une démarche écologique est affirmée, en s’appuyant sur des cibles environnementales et en privilégiant la sobriété architecturale pour une nouvelle Skyline moderne et vivante. La gestion des flux, tant piétons que logistiques, est envisagée pour favoriser les échanges et faciliter les usages. Les aménagements paysagers mettent l’accent sur le végétal en dormance sur le site. Une réappropriation sensible est envisagée, avec les façades comme continuités des corridors écologiques et une intégration harmonieuse des trames constructives entre l’existant et le neuf. La ventilation naturelle par les façades, l’utilisation de matériaux biosourcés, la préfabrication et les chantiers secs sont privilégiés. Enfin, une articulation entre les espaces d’ateliers et de bureaux est prévue pour favoriser la synergie entre les différentes fonctions du site.
Le site de projet est doté de nombreux “objets merveilleux”: ce sont des bâtiments riches de leur passé industriel, parfois encore en activité. Positionnés à proximité les uns des autres, ils ont occupé ce territoire en bord de Loire à défaut de l’avoir urbanisé.
La réponse architecturale met en avant la création d’une nouvelle ville productive située entre ciel, terre et eau. Elle vise à renforcer la relation entre le site et la Loire tout en respectant l’existant et en adoptant une approche du «faire avec» pour valoriser le patrimoine industriel de la Cale Électrique du Bas-Chantenay.
Une démarche écologique est affirmée, en s’appuyant sur des cibles environnementales et en privilégiant la sobriété architecturale pour une nouvelle Skyline moderne et vivante. La gestion des flux, tant piétons que logistiques, est envisagée pour favoriser les échanges et faciliter les usages. Les aménagements paysagers mettent l’accent sur le végétal en dormance sur le site. Une réappropriation sensible est envisagée, avec les façades comme continuités des corridors écologiques et une intégration harmonieuse des trames constructives entre l’existant et le neuf. La ventilation naturelle par les façades, l’utilisation de matériaux biosourcés, la préfabrication et les chantiers secs sont privilégiés. Enfin, une articulation entre les espaces d’ateliers et de bureaux est prévue pour favoriser la synergie entre les différentes fonctions du site.
Maître d'ouvrage: Eiffage
(Privé)
Equipe maîtrise d’œuvre:
Architecte: LFA . Looking For Architecture
Equipe projet: Antoine Trollat (Chef de projet), Laurent Graber, Maxime Kreiter, Antoine Courdy, Josselin Pilorge, Raphaëlle Paire, Mathilde Gourmaud
Bureau d'étude environnemental: AIA
Crédits Images:
Flooer Studio
(Privé)
Equipe maîtrise d’œuvre:
Architecte: LFA . Looking For Architecture
Equipe projet: Antoine Trollat (Chef de projet), Laurent Graber, Maxime Kreiter, Antoine Courdy, Josselin Pilorge, Raphaëlle Paire, Mathilde Gourmaud
Bureau d'étude environnemental: AIA
Crédits Images:
Flooer Studio