La Biennale de Lyon










infos
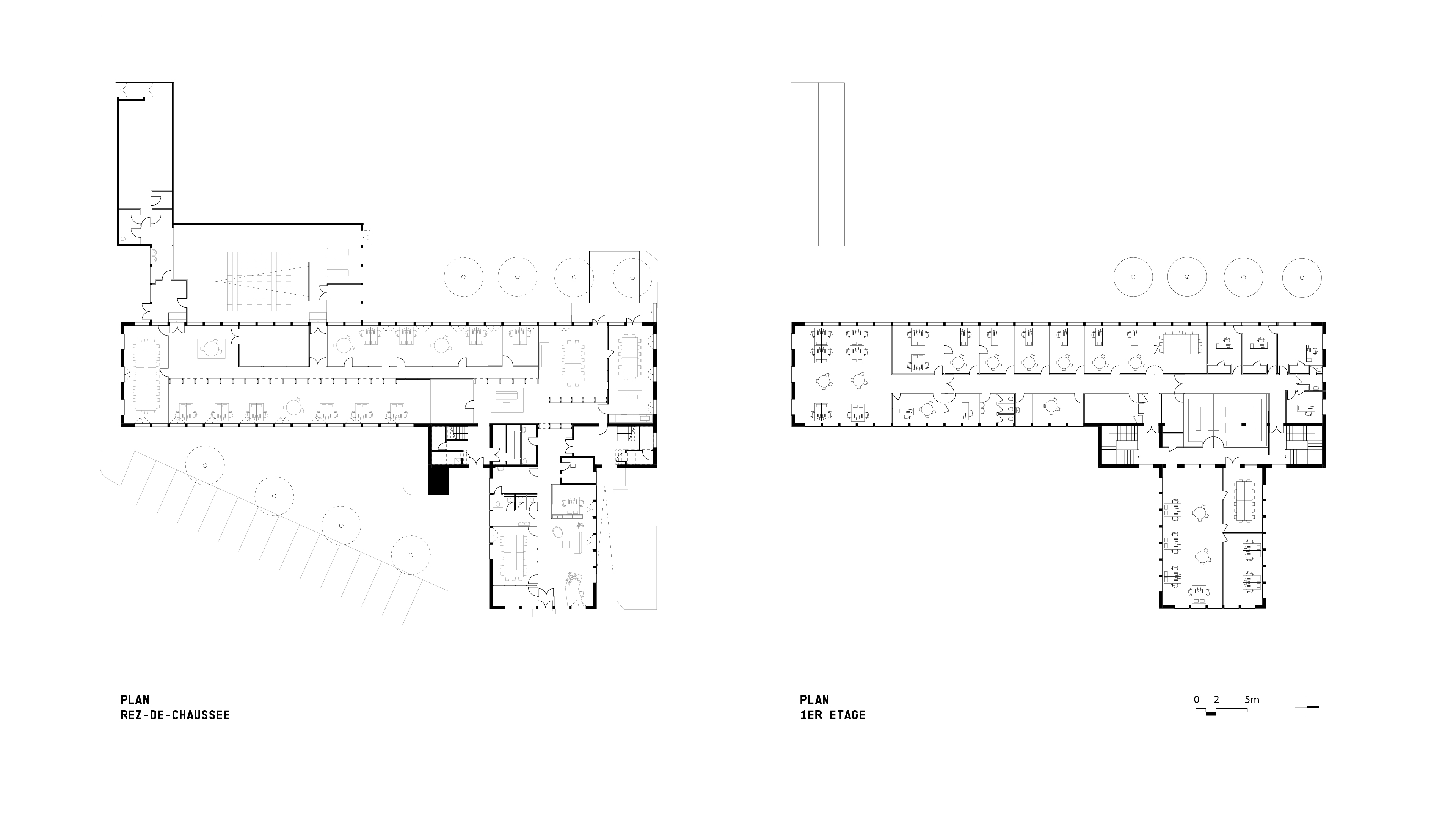
Réhabilitation d'un ancien bâtiment SNCF en bureaux
La Biennale de Lyon
infos
Réhabilitation d'un ancien bâtiment SNCF en bureaux
Localisation: La Mulatière . 69
Surface: 1 700 m2
Statut: Réalisé
Année: 2024
Montant travaux: 158 /m² € ht
Réhabilitation du bâtiment 20 de l'ancien technicentre SNCF d'Oullins en espaces de travail des équipes de La Biennale. Concertation puis Aménagement
Le bâtiment 20 est situé à l’entrée du site des Grandes Locos, ancien technicentre SNCF de La Mulatière. Il accueillait les services de la direction et de l’administration et a la particularité d’être le seul a dater des années 50-60. Il tranche de part son échelle avec le reste de l’architecture du site industriel et ses immenses halles.
L’association de La Biennale de Lyon a besoin de déménager rapidement sur ce nouveau centre culturel qui accueillera les grands évènements lyonnais. Ce mouvement transitoire demande la mise aux normes du bâtiment existant et l’adaptation des bureaux à l’usage de ses nouveaux occupants suite à une campagne de concertation des équipes.
Les sols existants tels que les carreaux de terrazzo ou les parquets en bois massif ont été révélés et mis en valeur, ils participent à la structuration des différents espaces de travail.
Des étagères en bois sur mesure permettent d’aménager les différents espaces sont réalisées en bois issu de la scénographie des expositions des biennales. Les ajouts comme les nouveaux réseaux électriques, le mobilier se détachent de l’intervention chromatique. Les aplats de couleurs viennent recouvrir l’existant, harmoniser mais également magnifier les imperfections et petits désordres de l’édifice. Telle une oeuvre d’art monochrome, la lumière, la matière et la volumétrie de l’architecture sont ainsi mises en valeur.
Le bâtiment 20 est situé à l’entrée du site des Grandes Locos, ancien technicentre SNCF de La Mulatière. Il accueillait les services de la direction et de l’administration et a la particularité d’être le seul a dater des années 50-60. Il tranche de part son échelle avec le reste de l’architecture du site industriel et ses immenses halles.
L’association de La Biennale de Lyon a besoin de déménager rapidement sur ce nouveau centre culturel qui accueillera les grands évènements lyonnais. Ce mouvement transitoire demande la mise aux normes du bâtiment existant et l’adaptation des bureaux à l’usage de ses nouveaux occupants suite à une campagne de concertation des équipes.
Les sols existants tels que les carreaux de terrazzo ou les parquets en bois massif ont été révélés et mis en valeur, ils participent à la structuration des différents espaces de travail.
Des étagères en bois sur mesure permettent d’aménager les différents espaces sont réalisées en bois issu de la scénographie des expositions des biennales. Les ajouts comme les nouveaux réseaux électriques, le mobilier se détachent de l’intervention chromatique. Les aplats de couleurs viennent recouvrir l’existant, harmoniser mais également magnifier les imperfections et petits désordres de l’édifice. Telle une oeuvre d’art monochrome, la lumière, la matière et la volumétrie de l’architecture sont ainsi mises en valeur.
Maître d'ouvrage: La Biennale de Lyon (Association)
Equipe maîtrise d’œuvre:
Architecte mandataire & OPC: LFA . Looking For Architecture
Equipe projet: Laurent Graber (Chef de projet), Antoine Trollat, Sarah Aboujouda, Emilie Lorand, Raphaëlle Paire
Equipe de maîtrise d’œuvre associée:
Bureau d'étude fluides: Axess Ingenierie
Crédits Photos:
Vladimir de Mollerat du Jeu
Equipe maîtrise d’œuvre:
Architecte mandataire & OPC: LFA . Looking For Architecture
Equipe projet: Laurent Graber (Chef de projet), Antoine Trollat, Sarah Aboujouda, Emilie Lorand, Raphaëlle Paire
Equipe de maîtrise d’œuvre associée:
Bureau d'étude fluides: Axess Ingenierie
Crédits Photos:
Vladimir de Mollerat du Jeu