La Cartonnerie














infos
Aménagement d’un espace de travail partagé
La Cartonnerie
infos
Aménagement d’un espace de travail partagé
Localisation: Lyon 7e . 69
Surface: 300 m2
Statut: Réalisé
Année: 2014
Montant travaux: 290 000 € ht
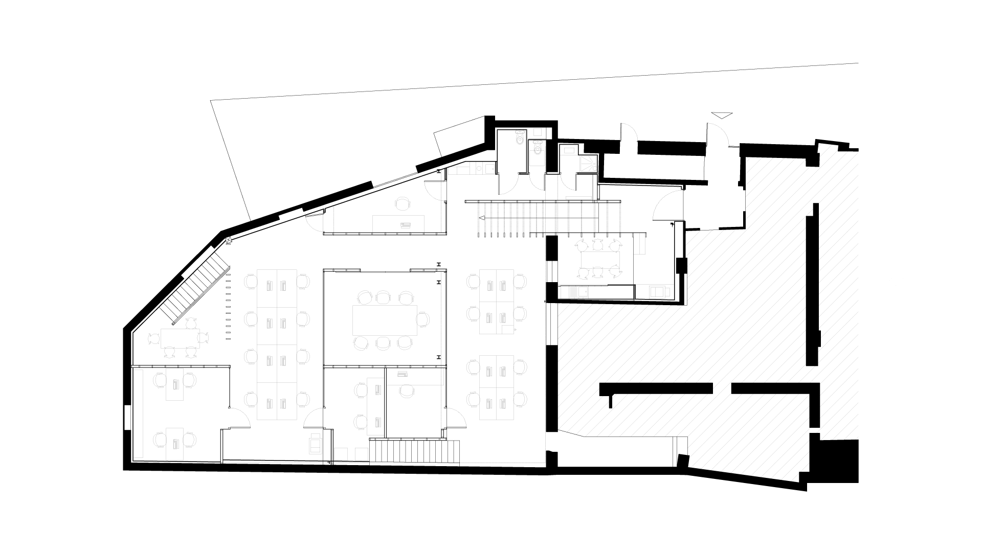
Le projet de la Cartonnerie prend place à la limite du 3e et du 7e arrondissement de Lyon. Situé en cœur d’îlot dans une ancienne cartonnerie, la restructuration a consisté dans un premier temps à reprendre l’ensemble de la toiture.
Les espaces se sont ensuite organisés naturellement dans la trame formée par les 4 sheds. Parois de verre et panneaux de contreplaqué bouleau permettent de hiérarchiser les usages, de jouer avec les transparences et les matières en révélant l’architecture du lieu. Le projet de la Cartonnerie intègre ainsi une écriture contemporaine dans une ancienne halle industrielle en préservant les qualités du lieu et en offrant de nouveaux usages.
Conçu pour les agences de communication Tetro et Trafik, l’agencement de l’espace permet les collaborations et les échanges tout en préservant l’intimité de chaque structure.
Les espaces se sont ensuite organisés naturellement dans la trame formée par les 4 sheds. Parois de verre et panneaux de contreplaqué bouleau permettent de hiérarchiser les usages, de jouer avec les transparences et les matières en révélant l’architecture du lieu. Le projet de la Cartonnerie intègre ainsi une écriture contemporaine dans une ancienne halle industrielle en préservant les qualités du lieu et en offrant de nouveaux usages.
Conçu pour les agences de communication Tetro et Trafik, l’agencement de l’espace permet les collaborations et les échanges tout en préservant l’intimité de chaque structure.
Maître d'ouvrage: SCI La Cartonnerie (Privé)
Architecte mandataire: LFA . Looking For Architecture
Equipe projet: Antoine Trollat (Chef de projet), Laurent Graber, Grégoire Oriol
Réalisation:
Maçonnerie, vrd: Ceroni
Charpente, couverture: MV Toiture
Menuiserie aluminium: Paulhac
Plâtrerie, peinture: Altiparmac
Menuiserie intérieure: MV Toiture
Électricité, ventilation: Elec-Créations
Chauffage, Plomberie, sanitaires: César
Serrurerie:
Crédits Photos:
Matthieu Despeysses
Architecte mandataire: LFA . Looking For Architecture
Equipe projet: Antoine Trollat (Chef de projet), Laurent Graber, Grégoire Oriol
Réalisation:
Maçonnerie, vrd: Ceroni
Charpente, couverture: MV Toiture
Menuiserie aluminium: Paulhac
Plâtrerie, peinture: Altiparmac
Menuiserie intérieure: MV Toiture
Électricité, ventilation: Elec-Créations
Chauffage, Plomberie, sanitaires: César
Serrurerie:
Crédits Photos:
Matthieu Despeysses