Maison B.









infos
Requalification d'une grange en résidence principale
Maison B.
infos
Requalification d'une grange en résidence principale
Localisation: Lyon 5e . 69
Surface: 160 m2
Statut: Réalisé
Année: 2019
Montant travaux: 220 000 € ht
Emergeant d'une ruine en mâchefer nichée au cœur d’une zone boisée et classée, la Maison B a été conçue en imaginant un volume habitable contemporain imbriqué au bâti vernaculaire. Les murs conservés de l’ancienne grange, laissés bruts à l’extérieur et peints blanc en intérieur, contrastent avec la structure contemporaine et les détails en bois.
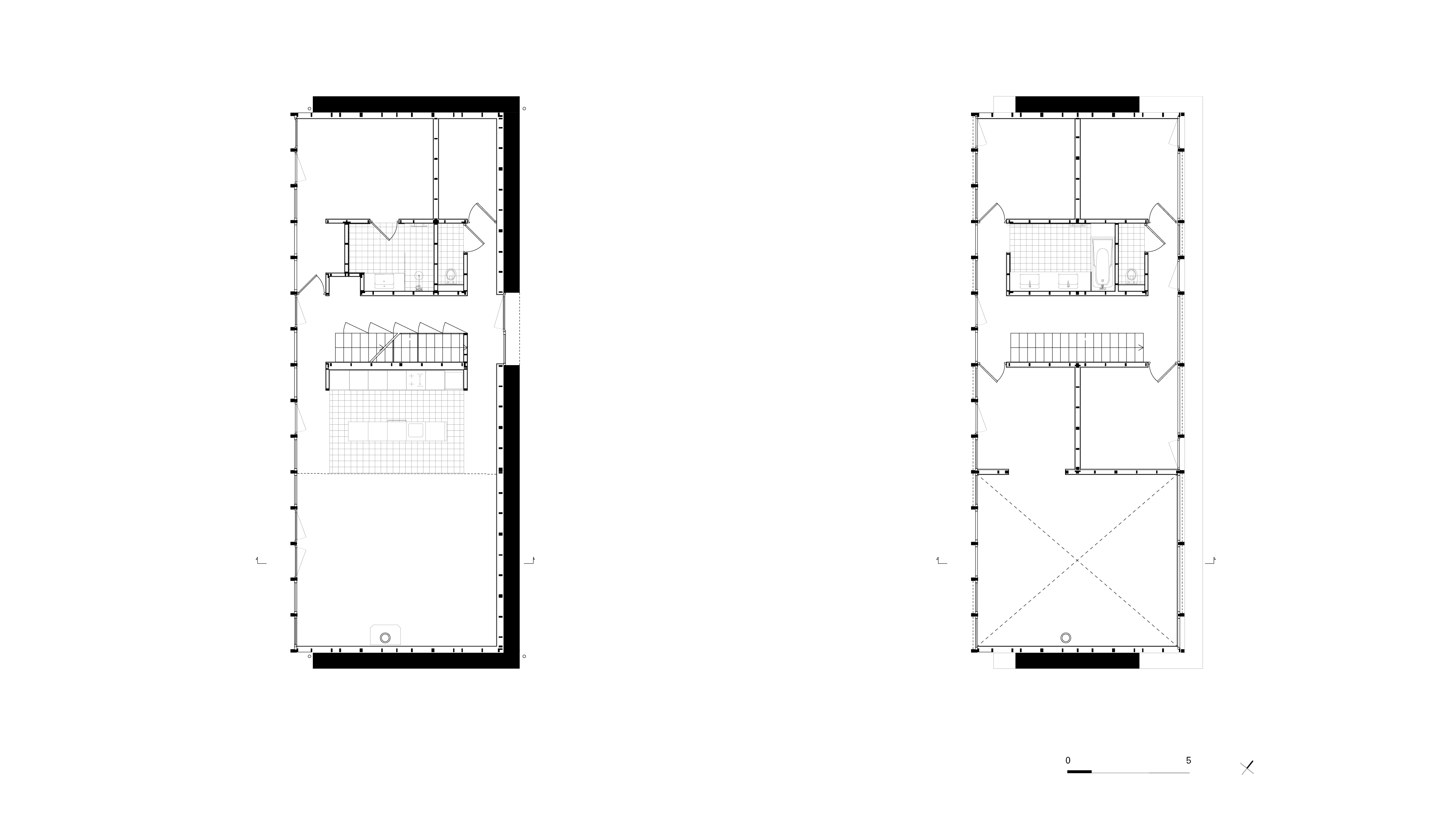
La nouvelle typologie de la maison offre une répartition optimum des espaces et minimise les circulations : les pièces d’eau se superposent au premier et deuxième étage, autour desquelles sont répartis le séjour ainsi que les cinq chambres. Le salon en double hauteur permet de lire le volume total de l’intervention.
L’emprise rectangulaire de la maison est orientée du Nord au Sud dans sa longueur. Les ouvertures organisées Est-Ouest permettent de contraster la relation au paysage tout en générant une ventilation naturelle traversante optimale.
La nouvelle typologie de la maison offre une répartition optimum des espaces et minimise les circulations : les pièces d’eau se superposent au premier et deuxième étage, autour desquelles sont répartis le séjour ainsi que les cinq chambres. Le salon en double hauteur permet de lire le volume total de l’intervention.
L’emprise rectangulaire de la maison est orientée du Nord au Sud dans sa longueur. Les ouvertures organisées Est-Ouest permettent de contraster la relation au paysage tout en générant une ventilation naturelle traversante optimale.
Maître d'ouvrage: Privé
Architecte: LFA . Looking For Architecture
Equipe projet: Laurent Graber (Chef de projet), Maxime Kreiter, Camille Thomas
Réalisation:
Structure & Performance (VRD Maçonnerie)
Triphase (Electricité)
Chauffea (Plomberie CVC)
Jean Faure (Menuiseries intérieures et extérieures Bois)
Metiista (Plâtrerie Peinture)
Enveloppe travaux: NC
Crédits images:
Maxime Valcarce, LFA
Architecte: LFA . Looking For Architecture
Equipe projet: Laurent Graber (Chef de projet), Maxime Kreiter, Camille Thomas
Réalisation:
Structure & Performance (VRD Maçonnerie)
Triphase (Electricité)
Chauffea (Plomberie CVC)
Jean Faure (Menuiseries intérieures et extérieures Bois)
Metiista (Plâtrerie Peinture)
Enveloppe travaux: NC
Crédits images:
Maxime Valcarce, LFA