Modul'Air
















infos
Conception-réalisation d'un pôle régional dédié à l'accueil d'entreprises et d'acteurs de la filière drone
Modul'Air
infos
Conception-réalisation d'un pôle régional dédié à l'accueil d'entreprises et d'acteurs de la filière drone
Localisation: Bretigny-sur-Orge . 91
Surface: 1 901 m2
Statut: Réalisé
Année: 2021
Montant travaux: 4 094 000 € ht
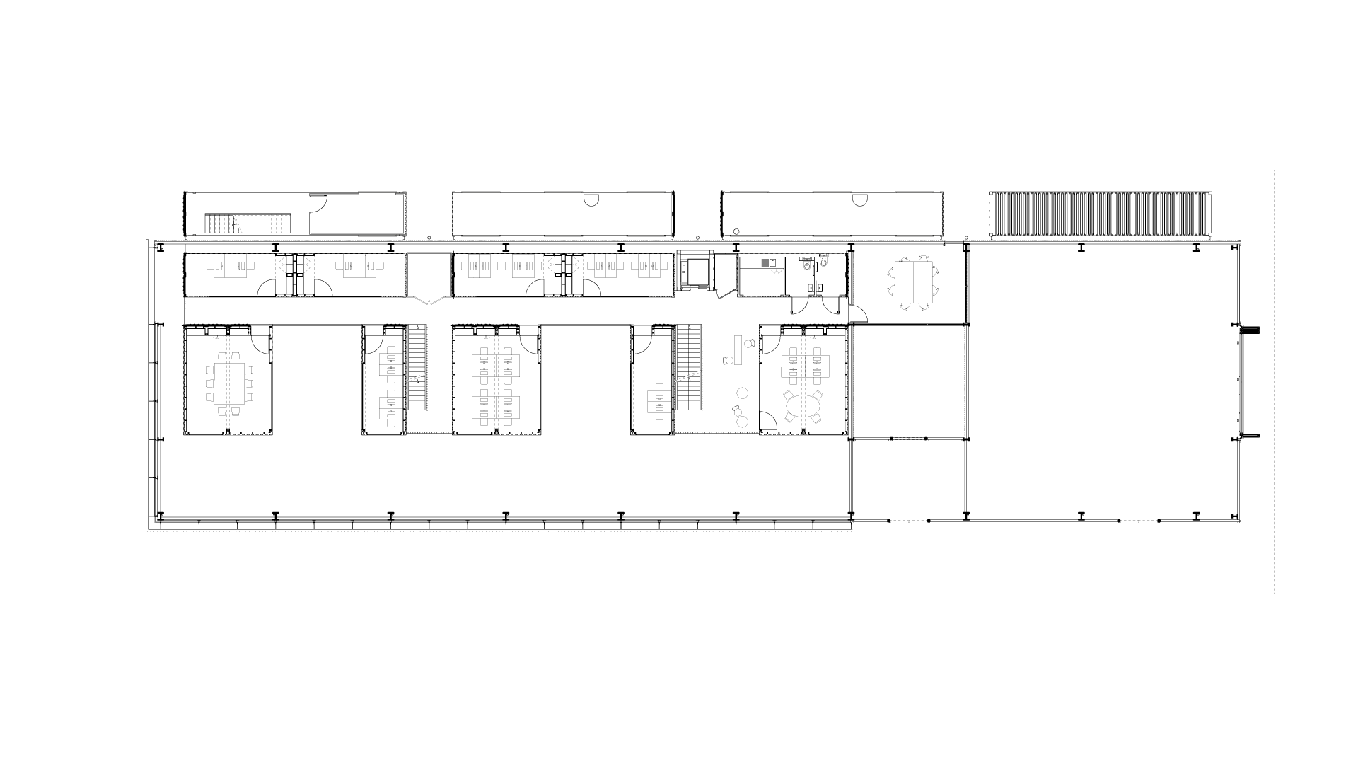
Le programme, destiné à être évolutif, rassemble au départ des bureaux, des ateliers, un espace d'évènements et une zone de vol couverte pour le test et la démonstration de drones. Le projet prend place dans le projet urbain de reconversion de l'ancienne base aérienne militaire 217 à Brétigny-sur-Orge, et constitue une des premières pierres de ce vaste aménagement. L'installation à cet endroit d'un lieu unique pour la filière drone s'inscrit donc dans la longue histoire d'innovations et d'avancées technologiques de la B.A.217 dans le domaine aéronaval.
En lui-même, le projet a été imaginé avant tout pour permettre une grande évolutivité des usages qu'il abrite afin d'accompagner le développement du projet urbain à venir, en visant une flexibilité des espaces dans le futur pouvant aller jusqu'à un déplacement, une extension de diverses manières, voire une réduction.
Sur un socle en béton, le bâtiment est ensuite construit exclusivement en chantier sec grâce à une enveloppe globale formée par une charpente métallique portant une toiture, des façades composées d'une part de bardage métallique, d'autre part de polycarbonate translucide ou de vitrage. A l'intérieur, des cloisons et plateaux intermédiaires en structure métallique différencient de grandes zones. Abrités par cette enveloppe, des containers maritimes transformés et aménagés au préalable en atelier sont installés sur trois niveaux, formant une seconde peau qui confère un meilleur confort à des espaces plus réduits où prennent place des usages plus fixes et plus définis. Ces piles de containers portent des coursives qui les desservent et des plateaux de bureaux, construits en structure légère métallique, et ouverts sur un grand volume en triple hauteur organisé le long de la façade sud-est qui offre un espace collectif et permet l'accueil d'évènements.
En lui-même, le projet a été imaginé avant tout pour permettre une grande évolutivité des usages qu'il abrite afin d'accompagner le développement du projet urbain à venir, en visant une flexibilité des espaces dans le futur pouvant aller jusqu'à un déplacement, une extension de diverses manières, voire une réduction.
Sur un socle en béton, le bâtiment est ensuite construit exclusivement en chantier sec grâce à une enveloppe globale formée par une charpente métallique portant une toiture, des façades composées d'une part de bardage métallique, d'autre part de polycarbonate translucide ou de vitrage. A l'intérieur, des cloisons et plateaux intermédiaires en structure métallique différencient de grandes zones. Abrités par cette enveloppe, des containers maritimes transformés et aménagés au préalable en atelier sont installés sur trois niveaux, formant une seconde peau qui confère un meilleur confort à des espaces plus réduits où prennent place des usages plus fixes et plus définis. Ces piles de containers portent des coursives qui les desservent et des plateaux de bureaux, construits en structure légère métallique, et ouverts sur un grand volume en triple hauteur organisé le long de la façade sud-est qui offre un espace collectif et permet l'accueil d'évènements.
Nommé à l’Équerre d'Argent [40e édition]
catégorie Lieux d’activités
Trophée Eiffel 2022
catégorie Travailler
Maître d'ouvrage: Cœur d'Essonne Agglomération (Public)
Maître d'ouvrage délégué: SPL Air 217
Assistant à la maîtrise d'ouvrage - Urbanistes: L'AUC
Entreprise mandataire: Capsa Container
Equipe maîtrise d’œuvre:
Architecte mandataire: LFA . Looking For Architecture
Equipe projet: Laurent Graber (Chef de projet), Antoine Trollat, Luc Doin, Emilie Lorand, Maxime Kreiter, Pierre-Eloi Coste
Equipe de maîtrise d’œuvre associée:
Architecte d’exécution: Calq architectes
Bureau d'étude fluides: Sintec
Bureau d'étude structure: Sintec
Bureau d'étude acoustique: Link acoustique
Economiste: Denizou
Crédits Photos:
Kevin Dolmaire
catégorie Lieux d’activités
Trophée Eiffel 2022
catégorie Travailler
Maître d'ouvrage: Cœur d'Essonne Agglomération (Public)
Maître d'ouvrage délégué: SPL Air 217
Assistant à la maîtrise d'ouvrage - Urbanistes: L'AUC
Entreprise mandataire: Capsa Container
Equipe maîtrise d’œuvre:
Architecte mandataire: LFA . Looking For Architecture
Equipe projet: Laurent Graber (Chef de projet), Antoine Trollat, Luc Doin, Emilie Lorand, Maxime Kreiter, Pierre-Eloi Coste
Equipe de maîtrise d’œuvre associée:
Architecte d’exécution: Calq architectes
Bureau d'étude fluides: Sintec
Bureau d'étude structure: Sintec
Bureau d'étude acoustique: Link acoustique
Economiste: Denizou
Crédits Photos:
Kevin Dolmaire